MAERSK OIL

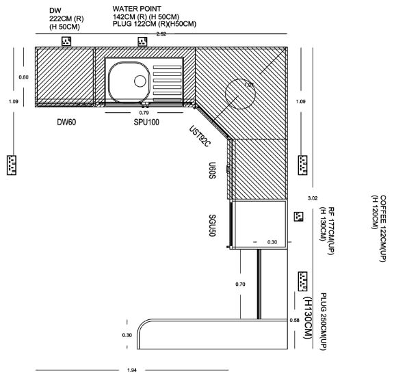
This project included Designing & Fit out works for 12 functional pantries.

We used anti-bacterial materials ensuring safe and healthy environment for the employees.

We performed our work during non-working days so that the company’s workflow will not be interrupted.

Project Type: Design & Fit out

Features: Living Spaces

Copyright © 2015 Living Spaces. All rights reserved.